Sistema idraulico e di filtrazione adatto per piscine interrate private
Disponibile in 3 diverse proposte completi di differenti accessori
L’impianto idraulico e di filtrazione è particolarmente adatto per le piscine interrate a uso privato, disponibile in diverse tipologie a seconda delle proprie esigenze.
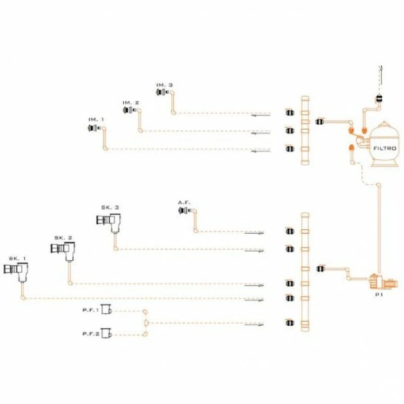
Si tratta di un sistema completo che, per il corretto funzionamento, si consiglia di posizionare il locale tecnico a una distanza massima di 3 mt. Allo stesso tempo occorre collocare la pompa di filtrazione al medesimo livello del piano base della vasca. Se la distanza è superiore rispetto a quella indicata, bisognerà integrare una tubazione semirigida e successivamente analizzare l’idoneità del gruppo filtrante.
Per l’impianto idraulico è dunque possibile scegliere tra 3 differenti proposte:
- Kit base, caratterizzato dal sistema idraulico e di filtrazione;
- Kit gold, completo del set precedente con luci e quadro elettrico;
- Kit top, dotato dell’impianto idraulico, di filtrazione, luci, quadro tecnico e sterilizzatore al sale con regolatore di pH.
Per coloro che acquisteranno uno di questi kit riceveranno il disegno esecutivo realizzato da un nostro ingegnere con le quote d’installazione dei vari accessori.
Questi kit sono dotati di 3 skimmer sfioratore Hayward in ABS corredato di troppo pieno completo di cestello raccogli impurità e coperchio ispezionabile, 2 pozzetti di fondo in ABS indispensabili per lo svuotamento della piscina e per diversificare la modalità di filtrazione, 3 bocchette di immissione necessari per il ricircolo dell’acqua, una presa a spazzola o aspirafango da collegare al tubo flessibile per una corretta pulizia della piscina interrata e un regolatore di livello da applicare in prossimità dello skimmer che permette di compensare la naturale evaporazione dell’acqua, per evitare che un livello troppo basso provochi sia un’entrata d’aria nello skimmer che il blocco della pompa di filtrazione.
Modelli di impianto idraulico per piscina interrata
| Impianto idraulico | Kit Base | Kit Gold | Kit Top |
| Raccorderia | ✔ | ✔ | ✔ |
| Kit di filtrazione | ✔ | ✔ | ✔ |
| Fari a led | ✔ | ✔ | |
| Quadro elettrico | ✔ | ✔ | |
| Pozzetti ispezione per fari | ✔ | ✔ | |
| Sterilizzatore al sale | ✔ | ||
| Pompa peristaltica pH | ✔ |
Esploso dei componenti
Kit Base
- 8 Gomiti ad incollaggio FF a 90° Ø 50
- 5 Gomiti ad incollaggio MF a 90° Ø 50
- 6 Collari per tubo di plastica 50
- 4 T femmina da incollare Ø 50
- 3 Raccordi da 2″x50 mm filetto/incollaggio
- 12 Valvole sfera da incollare Ø 50
- 5 Mt Tubo PVC rigido ø 50
- 1 Colla Tangit con pennello da 250 gr
- 2 Rotoli di nastro teflon professionale
- 150 mt tubo PVC flessibile da Ø 50
- 5 Passanti a muro in ABS per piscine in cemento L 250 mm e attacchi F ø 50 mm e F ø2″
- Collettore professionale aspirazione a 5 vie in pvc diametro 90 mm
- Collettore professionale immissori a 3 vie in pvc diametro 90 mm
- 2 Collari diametro 90 mm per collettore
- 5 bocchettoni filetto/incollaggio da 1″1/2 x 50 mm
- Motore da 1,00 CV con pre filtro
- Filtro a sabbia da 22 m3 nominali
- Base per filtro a sabbia completo
- 250 Kg di sabbia quarzifera con granulometria 0,4-0,8 m
Kit Gold
- 8 Gomiti ad incollaggio FF a 90° Ø 50
- 5 Gomiti ad incollaggio MF a 90° Ø 50
- 6 Collari per tubo di plastica 50
- 4 T femmina da incollare Ø 50
- 3 Raccordi da 2″x50 mm filetto/incollaggio
- 12 Valvole sfera da incollare Ø 50
- 5 Mt Tubo PVC rigido ø 50
- 1 Colla Tangit con pennello da 250 gr
- 2 Rotoli di nastro teflon professionale
- 150 mt tubo PVC flessibile da Ø 50
- 7 Passanti a muro in ABS per piscine in cemento L 250 mm e attacchi F ø 50 mm e F ø2″
- Collettore professionale aspirazione a 5 vie in pvc diametro 90 mm
- Collettore professionale immissori a 3 vie in pvc diametro 90 mm
- 2 Collari diametro 90 mm per collettore
- 5 Bocchettoni filetto/incollaggio da 1″1/2 x 50 mm
- 2 Bocchette di immissione a parete filettata 2” esterno – Ø 50 mm interno a incollaggio
- 2 Pozzetti di ispezione da montare in prossimità dei fari
- 2 Fari a led Bianchi o RGB
- 1 Quadro elettrico Hayward monofase con trasformatore per fari incluso
- Motore da 1,00 CV con pre filtro
- Filtro a sabbia da 22 m3 nominali
- Base per filtro a sabbia completo
- 250 Kg di sabbia quarzifera con granulometria 0,4-0,8 mm
Kit Top
- 8 Gomiti ad incollaggio FF a 90° Ø 50
- 5 Gomiti ad incollaggio MF a 90° Ø 50
- 6 Collari per tubo di plastica 50
- 4 T femmina da incollare Ø 50
- 3 Raccordi da 2″x50 mm filetto/incollaggio
- 15 Valvole sfera da incollare Ø 50
- 5 Mt Tubo PVC rigido ø 50
- 1 Colla Tangit con pennello da 250 gr
- 2 Rotoli di nastro teflon professionale
- 150 mt tubo PVC flessibile da Ø 50
- 7 Passanti a muro in ABS per piscine in cemento L 250 mm e attacchi F ø 50 mm e F ø2″
- Collettore professionale aspirazione a 5 vie in pvc diametro 90 mm
- Collettore professionale immissori a 3 vie in pvc diametro 90 mm
- 2 CollarI diametro 90 mm per collettore
- 5 Bocchettoni filetto/incollaggio da 1″1/2 x 50 mm
- 2 Bocchette di immissione a parete filettata 2” esterno – Ø 50 mm interno a incollaggio
- 2 Pozzetti di ispezione da montare in prossimità dei fari
- 2 Fari a led Bianchi o RGB
- 1 Quadro elettrico Hayward monofase con trasformatore per fari incluso
- Sterilizzatore al sale Hayward con incluso il sensore di flusso
- Pompa peristaltica per la gestione del pH
- 1 Curva ad incollaggio FF da 50 mm
- 2 mt di tubo rigido
- 1 Riduzione corta
- 1 riduttore 75x63x50″
- Motore da 1,00 CV con pre filtro
- Filtro a sabbia da 22 m3 nominali
- Base per filtro a sabbia completo
- 250 Kg di sabbia quarzifera con granulometria 0,4-0,8 mm















Recensioni
Ancora non ci sono recensioni.